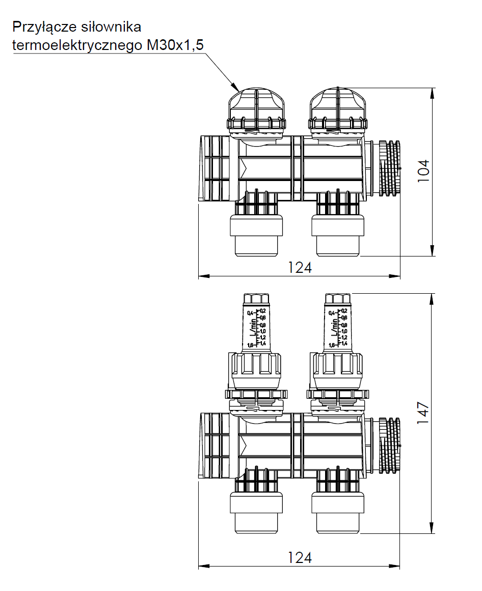
Rozszerzenie rozdzielacza ProCalida EF1 lub EF1 K o 2 obiegi, przepływomierz 0,2÷1,6 l/min
Belka zasilająca wyposażona w rotametry z zakresem regulacji przepływu 0,2 ÷ 1,6 l/min.
Belka powrotna wyposażona w nakrętki zaworów do ręcznego odcinania strumienia w danej pętli.
Na zaworach odcinających na belce powrotnej można zamontować siłowniki termoelektryczne (np. TSA-01) i podłączyć je do systemu sterowania strefowego (np. FloorControl, CosiTherm), co pozwoli ustawić różne temperatury w każdej ze stref.
Zastosowanie
Stosowany w instalacjach płaszczyznowych grzewczych lub chłodzących.Montowany bezpośrednio do rodzielacza ProCalida EF1 lub EF1 K.
Rozprowadza ciepło / chłód ze źródła na poszczególne pętle instalacji płaszczyznowej.
Reguluje strumień medium w każdej z pętli.
Umozliwia rozbudowę układu o 2 obiegi.









