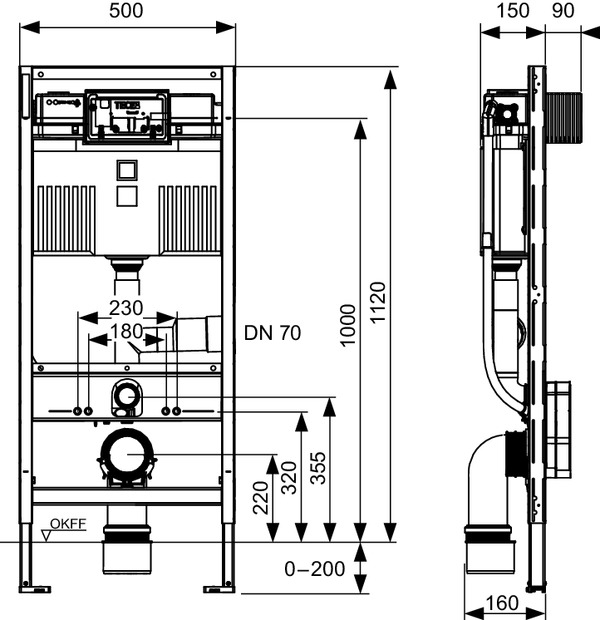
Stelaż podtynkowy do WC TECE profil, 1120 x 500 x 160 mm, regulowana wysokość, ze spłuczką
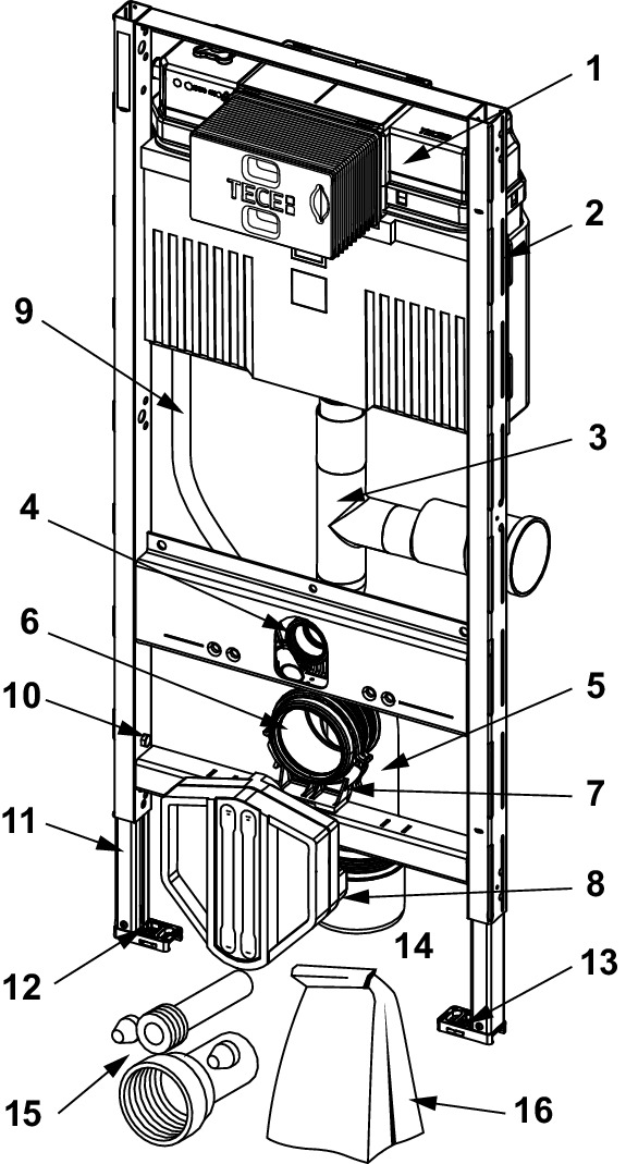
Moduł WC z instalacją przycisku spłukującego „easy fit” i rurką instalacyjną do podłączenia elektronicznych toalet myjących. Do mocowania na kształtownikach stalowych TECEprofil lub do montażu w ścianach z profili metalowych lub drewnianych oraz jako ścianka przednia lub moduł narożnikowy.
Spłuczka Uni uruchamiana z przodu:
- bezpieczny zbiornik z tworzywa odpornego na uderzanie, przetestowany zgodnie z normą EN 14055
- kompletnie zmontowana i zaplombowana spłuczka
- przyłącze spłuczki z gwintem zewnętrznym R 1/2", kompatybilne z adapterami szybkiego montażu
- pojemność zbiornika 10 litrów; standardowe ustawienie ilości spłukiwanej wody 6 litrów, opcjonalnie możliwość ustawienia ilości spłukiwanej wody 4,5/7,5/9 litrów; w systemie spłukiwania dwoma ilościami wody możliwość spłukiwania 3 litrami; pozostała ilość wody do natychmiastowego spłukiwania czyszczącego
- izolacja przeciw skraplaniu wody
- do przycisków spłukujących TECE i elektroniki spłukującej i armatury WC
- możliwość zastosowania spłuczki do spłukiwania pojedyńczego lub dwoma ilościami wody
- instalacja przycisków spłukujących „easy fit”
- tunel montażowy do otworu rewizyjnego może zostać skrócony bez użycia narzędzi
- cichy zawór napełniający, grupa akustyczna 1 zgodnie z normą DIN 4109
- przyłącze do pochłaniacza zapachów (DN 70), dopasowany wentylator np. Maico ER 100
- regulacja ciśnienia wody spłukującej bez konieczności demontażu zaworu spustowego
Rama stelaża:
- samonośna, malowana proszkowo
- dwie szpilki mocujące i nakrętki M 12
- kolano odpływowe do WC DN 90 z adapterem przyłączeniowym DN 90/100, wykonane z PP
- adapter przyłączeniowy odpowiedni także do montażu poziomego
- kpl. kroćców przyłączeniowych wraz z zatyczkami, do montażu ceramiki
- puszka przyłączeniowa z szablonem montażowym do wykonania uniwersalnego przyłącza elektrycznego i wodnego dla toalety myjącej (sprawdź pozycję przyłącza zimnej wody)
Możliwość podwyższonego mocowania ceramiki na wysokości siedzenia 48 cm zgodnie z niemiecką normą DIN 18040 (DIN 18040: Budownictwo bez barier – część 1: Obiekty użyteczności publicznej).
Należy zamawiać oddzielnie:
- przycisk spłukujący do WC (patrz przyciski spłukujące)
- mocowanie górne
- płytkę maskującą z koszem na kostki czyszczące (opcja)
- TECE zestaw montażowy do ceramiki myjącej w zabudowie suchej
Uwaga:
- w przypadku stosowania ceramiki WC o zmniejszonej powierzchni stykowej (= odstęp między bolcem mocującym a dolną krawędzią powierzchni stykowej nie większy niż 18 cm) - np.: V & B Memento, Subway 2.0 – konieczny jest montaż stalowych podpór nr kat. 9041029.
- Odciąg zapachów można stosować we wszystkich popularnych ceramikach WC. W przypadku toalet z wysoką pozycją siedzenia lub wysoko położonym kołnierzem rozprowadzającym, woda spłukująca, po spłukaniu może zalegać w rurze dopływowej i całkowicie lub częściowo zatkać kanał ssawny. Lista ceramik w których niemożliwe jest zastosowanie odciągu zapachów jest dostępna w aktualnych instrukcjach technicznych.
Dane techniczne
Głębokość [mm]
160
Regulowana wysokość
Tak
Szerokość [mm]
500
Wysokość [mm]
1120
Dane logistyczne
Opakowanie zbiorcze 2
Długość [m]
1,16
Szerokość [m]
0,51
Wysokość [m]
0,156








