Grzejnik płytowy typ 21 KERMI V-HHV QN883(R), bez osłony wym. 700 x 600 mm, kolor biały, moc 883 W
Konkretne i proste wzornictwo, płaskie wykonanie, duża moc i dowolność pod względem proporcji i wymiarów.
Wyjątkowa technika zaworowa Kermi dająca odczuwalną oszczędność energii. Estetyczny wygląd, skrócony czas montażu i prosta instalacja.
Dyskretne, estetyczne i funkcjonalne rozwiązanie koncepcji architektonicznej.
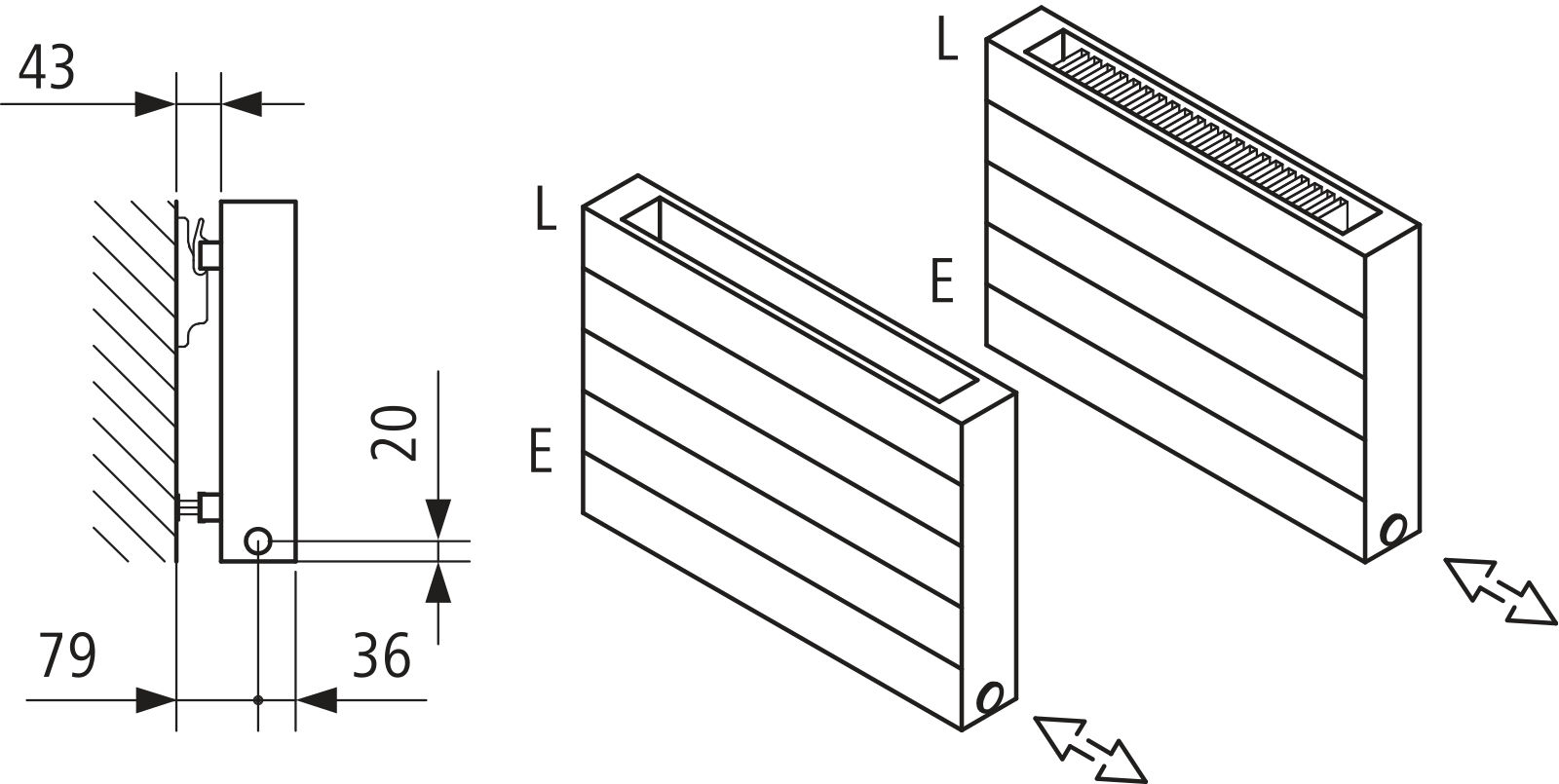
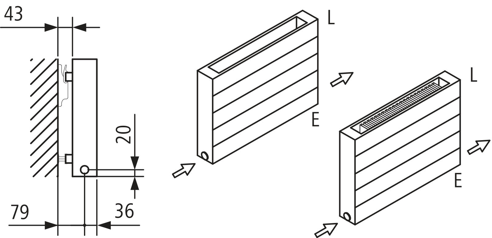
Pionowe, smukłe wykonanie – estetycznie wykończone za pomocą standardowo montowanej bocznej osłony lub idealne dostosowanie w wersji poziomej – z elegancką osłoną lub bez.
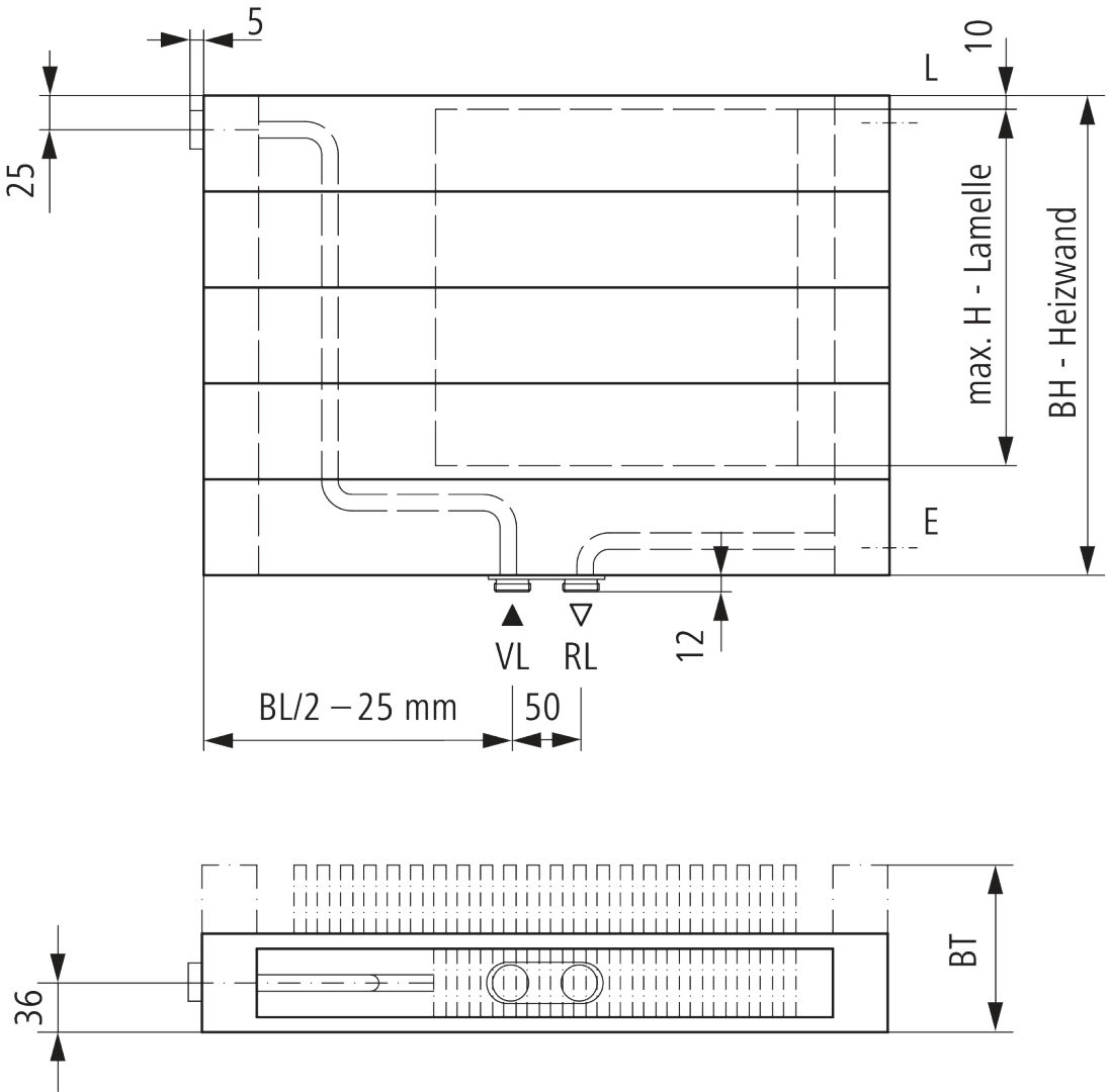
Dane techniczne
Długość [mm]
600
Głębokość [mm]
72
Kolor
Biały
Moc cieplna EN 442 20°C - 75/65 [W]
883
Rodzaj
21
Wysokość [mm]
700








