Grzejnik płytowy typ 22 KERMI V-HHV, z osłonami wym. 350 x 1100 mm, kolor biały, moc 1417 W
Konkretne i proste wzornictwo, płaskie wykonanie, duża moc i dowolność pod względem proporcji i wymiarów.
Wyjątkowa technika zaworowa Kermi dająca odczuwalną oszczędność energii. Estetyczny wygląd, skrócony czas montażu i prosta instalacja.
Dyskretne, estetyczne i funkcjonalne rozwiązanie koncepcji architektonicznej.
Pionowe, smukłe wykonanie – estetycznie wykończone za pomocą standardowo montowanej bocznej osłony lub idealne dostosowanie w wersji poziomej – z elegancką osłoną lub bez.
Dane techniczne
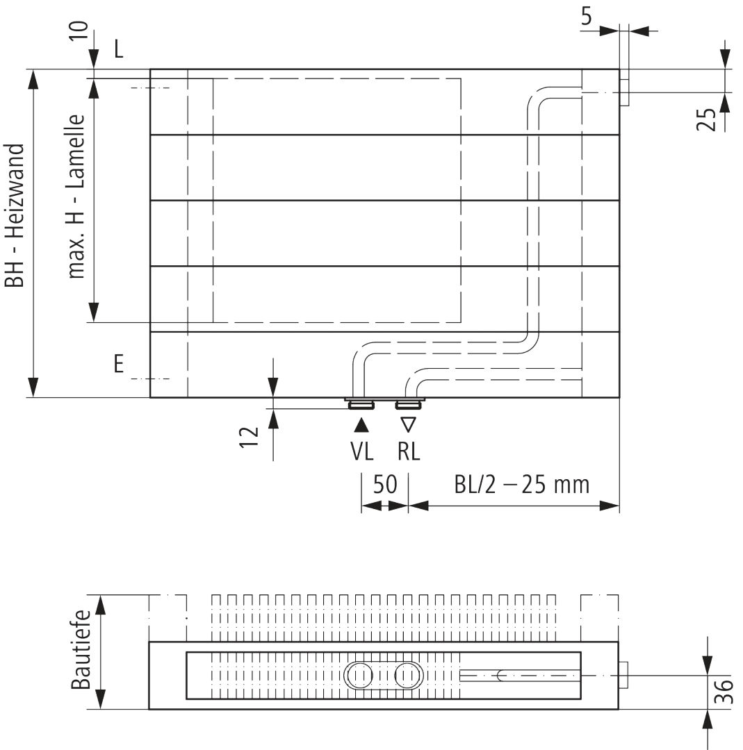
Długość [mm]
1100
Głębokość [mm]
122
Kolor
Biały
Moc cieplna EN 442 20°C - 75/65 [W]
1417
Rodzaj
22
Wysokość [mm]
350








