Pompa głębinowa 3-fazowa WILO Sub TWU 3-0145 częstotliwość 50 Hz, moc 1.1 kW 3.6 A, prędkość obrotowa 2800 obr/min
Zakres dostawy:
*Hydraulika razem z silnikiem gotowe do instalacji
*Kabel zasilający z atestem do wody użytkowej
*Wersja na prąd zmienny włącznie ze skrzynką łączeniową z kondensatorem, termicznym zabezpieczeniem silnika oraz włącznikiem/wyłącznikiem
*Instrukcja montażu i obsługi
Dane eksploatacyjne
*Wysokość podnoszenia maks.: 130 m
Jednostka
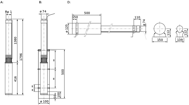
*Przyłącze gwintowane po stronie tłocznej: Rp 1
*Maks. ciśnienie robocze: 40 bar
*Maks. zawartość piasku: 50
*Stopień ochrony silnika:
*Maks. głębokość zanurzenia: 150 m
*Min. temperatura przetłaczanej cieczy: 3 oC
*Maks. temperatura przetłaczanej cieczy: 35 oC
*Masa netto ok.: 14,4 kg
Dane silnika
*Przyłącze sieciowe:
*Znamionowa moc silnika: 1100
*Znamionowa prędkość obrotowa: 2900 Obroty / min
*Prąd znamionowy: 3,2 A
*Rodzaj załączania: Bezpośrednio online (DOL)
*Maks. częstotliwość załączania: 30
*Średnica silnika: 76,199959 mm
Przewód
*Długość kabla zasilającego: 1,75 m
*Przekrój przewodu: 4G1,5 mm²
Materiały
*Korpus pompy: Stal nierdzewna
*Materiał silnika: Stal nierdzewna
*Wał: Stal nierdzewna
*Wirnik:
Informacje na temat umiejscowienia zamówień
*Masa netto ok.: 14,4 kg
*Produkt:
*Nazwa produktu: Sub TWU 3-0145 (3~400 V, 50 Hz)
*Numer artykułu: 4090895
Dane techniczne
Częstotliwość
50 Hz
Gatunek materiału korpusu pompy
Stal nierdzewna 304
Gatunek materiału wirnika
PVC-C
Głębokość zanurzenia [m]
60
Klasa ciśnienia kołnierza przyłącza wylotowego
PN 10
Klasa izolacji wg IEC
F
Kształt końcówki
Inne
Liczba faz
3
Maks. ciśnienie robocze [bar]
14,3
Maks. wydajność (maks. przepływ) [m³/h]
2,7
Maks. wysokość podnoszenia [m]
129,8
Maks. zawartość piasku [g/m³]
50
Maksymalna liczba cykli pracy [c/h]
30
Materiał korpusu pompy
Stal nierdzewna
Materiał wirnika
Inne
Moc oddawana silnika (P2) [kW]
1,1
Podłączenie elektryczne
Przewód połączeniowy z wtyczką
Przepływ nominalny (BEP) [m³/h]
0,9728
Przyłącze po stronie wylotowej
Gwint wewnętrzny gazowy stożkowy
Prąd znamionowy [A]
3,6
Prędkość obrotowa [obr/min]
2800
Stopień ochrony (IP)
IP58
Wysokość podnoszenia przy przepływie nominalnym (BEP) [kPa]
1142,48
Zakres napięcia znamionowego [V]
400
Średnica nominalna przyłącza od strony wylotowej
1 cal
Średnica zewnętrzna przyłącza od strony wylotowej [mm]
25
Do pobrania
Dane logistyczne
Opakowanie zbiorcze 1
Długość [m]
1,83
Szerokość [m]
0,17
Wysokość [m]
0,13







