Przepompownia hybrydowa wolnostojąca Ecolift L Bypass Duo FKA SPF 1300-S3
Do ścieków zawierających fekalia, część denna z PE-LD, do montażu w nieosłoniętym przewodzie kanalizacyjnym, odprowadzanie ścieków poprzez spadek do kanału. Funkcja pompowania jedną lub dwoma pompami, tylko podczas przepływu zwrotnego, z zamykaną za pomocą silnika klapą zwrotną z dodatkową klapą wahadłową.
Odprowadzanie wody w okresie przepływu zwrotnego odbywa się poprzez podłączany zintegrowany przewód ciśnieniowy.
Z zaworem zwrotnym i zasuwą odcinającą do przewodu tłocznego. Z uszczelkami przelotowymi DN 70 do przewodu wentylacyjnego w miejscu instalacji. System zamykania przewodu kanalizacyjnego z tworzywa sztucznego do bezpiecznego zamknięcia przewodu kanalizacyjnego podczas przepływu zwrotnego. W skład wchodzą: klapa wahadłowa z zamknięciem awaryjnym (aby w razie potrzeby możliwe było jej ręczne zablokowanie) i elektromotorycznym mechanizmem zamykającym z sodą z odpornym na zerwanie kablem do rozpoznawania przepływu zwrotnego. Urządzenia sterujące ze zintegrowanym systemem samodiagnozy (SDS), wyświetlaczem do wskazywania stanów roboczych i zintegrowanym buforem bateryjnym do sygnalizacji alarmu. Przyjazne dla użytkownika prowadzenie po menu na wielowierszowym wyświetlaczu. Z systemem samodiagnozy (SDS) i funkcją przypominania o następnej konserwacji. Wskazanie aktualnych wartości pomiarowych. Łatwe dopasowanie parametrów związanych z funkcjami, z licznikiem roboczogodzin i kontaktem bezpotencjałowym. Optymalne przekazywanie komunikatów alarmowych i zbiorczych poprzez modem GSM. Sterownik z wyświetlaczem tekstowym z pełnym zakresem znaków w sześciu językach.
Cechy ogólne
Kolor: czarny
Typ ścieków: Ścieki zawierające fekalia
Sposób zabudowy: swobodny przewód kanalizacyjny
Aprobata: Z-53.2-493
Stopień ochrony silnika: IP 68
Długość kabla: 1 m
ATEX: nie
Wymiary
Ciężar netto: 50,47 kg
Ciężar brutto: 76,19 kg
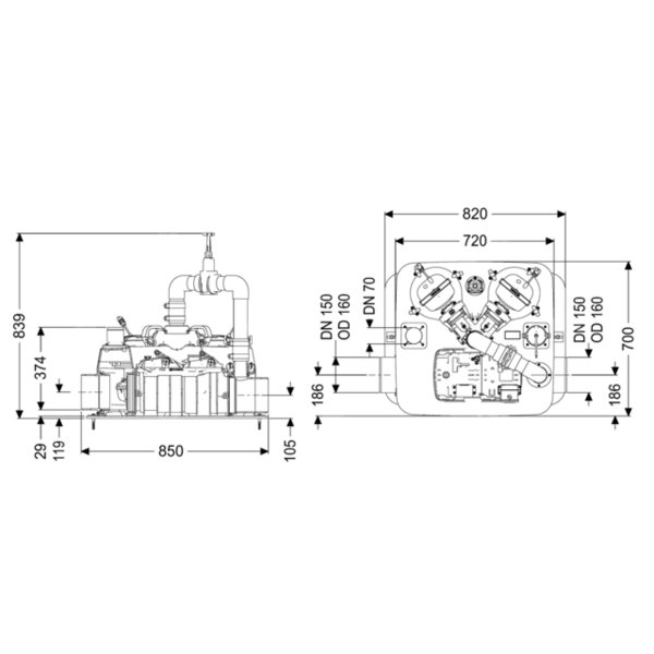
Długość: 700 mm
Szerokość: 850 mm
Wysokość: 839 mm
Wymiar opakowania: dł.: 855 mm
Wymiar opakowania: szer.: 775 mm
Wymiar opakowania: wys.: 640 mm
Zbiornik/korpus
Przewód tłoczny (DN): 50
Przewód tłoczny (DA): 63 mm
Wielkość nominalna odpływu (DN): 150 mm
Pojemność użytkowa: 20 l
Zawartość ścieków
Całkowita pojemność: 66 l
Przenośnik
Pompa: SPF 1350
Liczba pomp: 2
Prąd znamionowy: 6 A
Stopień ochrony pompy: IP 68 (3 m / 48 h)
Maks. wydajność tłoczenia: 26 m³/h
Maks. wys. podnoszenia: 10 m
Pobór mocy P1: 1,35 kW
Pobór mocy P2: 0,86 kW
Tryb roboczy: S3 - 50%
Wymagane zabezpieczenie (zabezpieczenie linii): C 16 A
Typ wirnika: Wolny przelot
Wolny przelot: 40 mm
Sterowanie
Sterownik: Comfort
Instrument do rozpoznania poziomu: Rura zanurzeniowa
Typ pomiaru poziomu: pneumatyczny
Częstotliwość sieciowa: 50 Hz
Napięcie robocze: 230 V
Prąd znamionowy: 6 A
Wymagane zabezpieczenie (zabezpieczenie linii): C 16 A
Do pobrania
Dane logistyczne
Opakowanie zbiorcze 1
Masa brutto [kg]
76,191
Długość [m]
0,855
Szerokość [m]
0,775
Wysokość [m]
0,64








