Kupuj, montuj i zgarniaj punkty! Sprawdź aktualne akcje w Programie PIK!
 

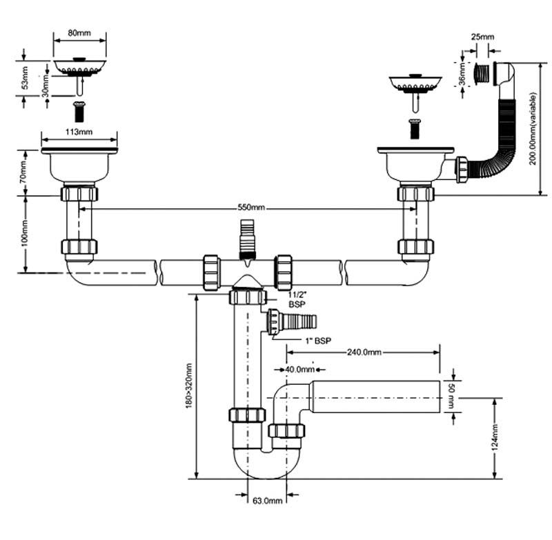
Syfon zlewozmywakowy rurowy podwójny 3,5"X50mm z podłączeniem pralki lub zmywarki, przelew

Kod IK

CEHC7HC12-POL1-25

Kod EAN

5036484043146

Kod producenta

HC7HC12-POL1-25

Marka

MCALPINE

Model

Brak modelu

Cena katalogowa netto

148,06 zł / szt.

Cena katalogowa brutto

182,11 zł / szt.

Syfon zlewozmywakowy rurowy podwójny 11/2"x50mm z podłączeniem do pralki i zmywarki, ze spustami 113mm i przelewem z ujsciem okrągłym.

Dane logistyczne

Opakowanie zbiorcze 1

Jednostka zbiorcza opak.

opak

Ilość

18

Masa brutto [kg]

21,9

Długość [m]

0,48

Szerokość [m]

0,58

Wysokość [m]

0,58