Przepompownia Aqualift S Compact Duo GTF1200 do zabudowy z pokrywą pod płytki
KESSEL Przepompownia Aqualift S Compact Duo, ścieków Ścieki bez fekaliów, zabudowa w płycie podłogowej, z 2 GTF 1200 pomp zatapialnych, rozpoznawania poziomu Rura zanurzeniowa, typ pokrywy pokrywa do wklejenia płytek, szary błękitny
- Zajmuje niewiele miejsca dzięki zabudowie w płycie podłogowej ze zintegrowaną funkcją wpustu.
- Łatwe przezbrojenie z Mono na Duo
- Cicha praca dzięki izolacji akustycznej pomp(y)
Przepompownia Aqualift S Compact Duo, GTF 1200, Płyta podł., wklejen.
Gotowa do przyłączenia przepompownia do ścieków bez fekaliów jest wyposażony w jedną lub dwie pompy zatapialną oraz zawór zwrotny. Zbiornik wykonany z trwałego tworzywa sztucznego (PE) posiada otwartą komorę pompy. Zamknięcia jednoręczne umożliwiają łatwe wyjęcie zintegrowanych komponentów. Urządzenie do zabudowy w płycie podłogowej jest wstępnie zmontowane do montażu końcowego w miejscu instalacji.
Wersja
- Typ urządzenia: urządzenie dwupompowe
- Sterowanie pompą: sterownik
- Zawór zwrotny: zintegrowany
Cechy ogólne
- Kolor: czarny
- Norma: EN 12050-2
- Typ ścieków: Ścieki bez fekaliów
- Sposób zabudowy: zabudowa w płycie podłogowej
- Stan w momencie dostawy: gotowy do instalacji (części łączące do podłączenia w miejscu instalacji)
- Typ urządzenia: Duo
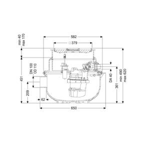
Wymiary
- Ciężar netto: 22,34 kg
- Ciężar brutto: 23,84 kg
- Odporność na wodę gruntową od dolnej krawędzi dna: 3000 mm
- Głębokość zabudowy: 490 - 620 mm
- Rodzaj regulacji wysokości: Nasada teleskopowa
- Długość: 617 mm
- Szerokość: 585 mm
- Wymiar opakowania: dł.: 600 mm
- Wymiar opakowania: szer.: 600 mm
- Wymiar opakowania: wys.: 480 mm
Zbiornik/korpus
- Przewód tłoczny (DN): 32
- Przewód tłoczny (DA): 40 mm
- Wielkość nominalna dopływu (DN): 100 mm
- Pojemność użytkowa: 20 l
Cechy pokrywy
- Typ pokrywy: pokrywa do wklejenia płytek
- Materiał pokrywy: Tworzywo sztuczne
- Kolor pokrywy: szary błękitny
- Pokrywy, Szerokość: 366 mm
- Pokrywy, Długość: 366 mm
- Funkcja wpustu: tak
- Blokada: Lock & Lift
- Klasa obciążenia: K 3 (EN 1253-1)
- Maks. grubość podłogi: 16 mm
Przenośnik
- Pompa: GTF 1200
- Liczba pomp: 2
- Typ przyłącza: Wtyczka kodowana
- Prąd znamionowy: 6,2 A
- Długość przewodu sieciowego pompy: 5 m
- Stopień ochrony pompy: IP 68 (3 m)
- Nadzór temperatury: zintegrowany
- Maks. temperatura tłoczonego medium (przy pracy stałej): 40 °C
- Odporność na gorącą wodę, krótkotrwale (2 min.): 80 °C
- Maks. wydajność tłoczenia: 15,5 m³/h
- Maks. wys. podnoszenia: 9 m
- Prędkość obrotowa: 2650 U/min
- Pobór mocy P1: 1,4 kW
- Pobór mocy P2: 0,84 kW
- Tryb roboczy: S1
- Wymagane zabezpieczenie (zabezpieczenie linii): C 16 A
- Typ przewodu przyłączeniowego pompy: H07RN-F 3G 1,5 mm²
- Typ wirnika: Wolny przelot
- Wolny przelot: 30 mm
Sterowanie
- Sterownik: Comfort
- Czujnik alarmowy: Sonda optyczna
- Instrument do rozpoznania poziomu: Rura zanurzeniowa
- Typ pomiaru poziomu: pneumatyczny
- Stopień ochrony sterowniku: IP 54
- Częstotliwość sieciowa: 50 Hz
- Napięcie robocze: 230 V
- Typ przyłącza: Wtyczka kodowana
- Długość przewodu sieciowego sterownik: 1,4 m
- Kontakt bezpotencjałowy: opcjonalny
- Złącze GSM: tak
- Złącze USB: tak
- Funkcja dziennika zdarzeń: tak
- Wyświetlacz wielowierszowy: tak
- Podtrzymywanie bateryjne: tak
- System samodiagnozy (SDS): tak
- Prąd znamionowy: 6,2 A








